13 500 000 Р 166 200 $ или 143 900

Информация о коттедже

189 м2
Площадь
2
Этажность
10 cоток
Участок

Дополнительная информация

Дом продаётся вместе с участком
есть
Развернуть
Агент
+7 (911) 700-41-63
Начать чат с агентом

Дом в Ленинградская область, Гатчинский муниципальный округ, д. Горки ...

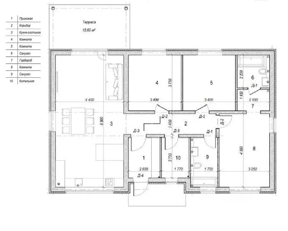
Арт.Добро пожаловать в дом с камином, расположенный в живописном элитном коттеджном поселке Горки-Ленд Локация Это идеальное место для комфортной жизни, всего в 20 км от города, в сердце Гатчинского района. Неподалеку находятся знаменитые музеи-заповедники, такие как Гатчинский дворец, Екатерининский дворец в Пушкине и Павловский парк, приглашая вас на незабываемые прогулки.ДомЭтот двухэтажный коттедж площадью 189 кв. метров на 10 сотках встречает Вас уютной открытой террасой, где можно насладиться утренним чаепитием или вечерними посиделками. На втором этаже вас ждет уединенная терраса, идеально подходящая для создания зоны отдыха, где каждый сможет расслабиться и насладиться атмосферой уюта. Продуманная планировка дома позволяет максимально эффективно использовать пространство. На первом этаже расположены: большая светлая гостиная с кухонной зоной и действующим камином, создающим теплую и уютную атмосферу площадью 40 кв. метров. Здесь же находятся гостевой санузел, просторная гардеробная с раздвижными дверями и техническая комната, а также стильная гостевая спальня с новой мебелью.На втором этаже расположена уединенная гостиная-холл, где с комфортом разместится диван и телевизор, а также выход на просторную террасу. Здесь можно создать идеальную зону для отдыха с великолепным видом и атмосферой уюта. Вам также доступны три отдельных спальни, ванная комната и санузел, а отдельная кладовка обеспечит удобное хранение ваших вещей.УчастокУютный участок ИЖС размером 10 соток, где оставлено много свободного места для воплощения ваших замыслов по дополнительному строительству или обустройству зоны отдыха.ИнфраструктураПоселок располагается в районе с развитой инфраструктурой. Его территория закрыта и ухожена на протяжении всего года. На въезде находятся гастроном и кафе, до которых можно дойти всего за 5 минут пешком. Территория охраняется круглосуточно с применением системы контроля въезда и видеонаблюдением. В поселке также есть детская площадка, спортивные зоны, места для отдыха и детский сад, автобусные остановки.Этот дом — ваш уголок спокойствия и комфорта, где каждый день будет наполнен радостью и гармонией.Звоните и мы организуем оперативные просмотры для Вас Предлагаем ПРЕМИАЛЬНОЕ обслуживание для требовательных клиентов.Оперативно организуем просмотр, предоставим полную информацию по объекту.20 лет работы с требовательными клиентами подготовили нас к решению ВАШИХ сложных задач.Будем рады знакомству Ул. Рубинштейна, д.8.

Читать полностью

    Для того, чтобы купить 2-этажный коттедж по адресу: Киришская улица, 28, позвоните по телефону +7 (911) 700-41-63. Торопитесь! Объявление №50016540731 о продаже двухэтажного коттеджа опубликовано 05 ноября 2025.

    Позвонить Написать
    13 500 000 Р166 200 $ или 143 900
    Агент
    +7 (911) 700-41-63
    Начать чат с агентом
    Похожие предложения
    Дом в Ленинградская область, Гатчинский муниципальный округ, д. ... - Фото 1
    Дом в Ленинградская область, Гатчинский муниципальный округ, д. ... - Фото 2
    1 этаж, общая площадь 130м², участок 1 сотка

    Продается дом в предчистовой отделке Подходит под семейную ипотеку Готовность предчистовой отделки: конец ноября Дом будет оборудован котельной с электрическим котлом и бойлером, будет оштукатурен, будет установлена система отопления - теплый пол.Также...
    • 1 эт.
    • 130 м²
    • 1 сот.
    13 000 000 Р
    Агент
    +7 (981) Показать номер
    Посмотреть контакты
    Дом в Ленинградская область, Гатчинский муниципальный округ, д. Горки ... - Фото 1
    Дом в Ленинградская область, Гатчинский муниципальный округ, д. Горки ... - Фото 2
    1 этаж, общая площадь 120м², участок 11 соток

    Вашему вниманию предлагается современный коттедж с максимально продуманной планировкой в благоустроенном коттеджном поселке Горки-Лэнд 3. В доме 3 спальни, мастер-блок с гардеробной и санузлом, просторная кухня-гостиная с отдельным кладовым помещением,...
    • 1 эт.
    • 120 м²
    • 11 сот.
    14 500 000 Р
    Агент
    +7 (981) Показать номер
    Посмотреть контакты
    Дом в Ленинградская область, Гатчинский муниципальный округ, д. ... - Фото 1
    Дом в Ленинградская область, Гатчинский муниципальный округ, д. ... - Фото 2
    1 этаж, общая площадь 125м², участок 12 соток

    В продаже новый дом 120м2 из газобетона. ИЖС Семейная ипотека Деревня Истинка ( вблизи д.Тайцы). Дом на монолитной плите с теплыми водяными полами. Газовый котел. Скважина и биостанция. В данный момент отделка. Электрика развдена.На большом участке....
    • 1 эт.
    • 125 м²
    • 12 сот.
    13 600 000 Р
    Агент
    +7 (931) Показать номер
    Посмотреть контакты
    Дом в Ленинградская область, Гатчинский муниципальный округ, деревня ... - Фото 1
    Дом в Ленинградская область, Гатчинский муниципальный округ, деревня ... - Фото 2
    1 этаж, общая площадь 125м², участок 12 соток

    В продаже новый дом 120м2 из газобетона. ИЖС Семейная ипотека Номер в базе:. Код пользователя: 176712
    • 1 эт.
    • 125 м²
    • 12 сот.
    13 600 000 Р
    Агент
    +7 (963) Показать номер
    Посмотреть контакты
    Дом в Ленинградская область, Гатчинский муниципальный округ, Ухта ... - Фото 1
    Дом в Ленинградская область, Гатчинский муниципальный округ, Ухта ... - Фото 2
    2 этажа, общая площадь 132м², участок 7 соток

    341323 Ленинградская область,Гатчинский район СНТ Ухта (Белогорка),рядом с Вырицей.Предлагаем вашему вниманию Дом с системой УМНЫЙ ДОМ Участок 7 соток,дом 130м2 плюс баня 60м2 с полной подводкой всех коммуникаций.Описание:Представляем вашему вниманию...
    • 2 эт.
    • 132 м²
    • 7 сот.
    14 200 000 Р
    Агент
    +7 (981) Показать номер
    Посмотреть контакты

    Не нашли подходящего объявления?

    Оставьте заявку, и наши риэлторы подберут купить дом в районе Гатчинского района

    (0)