2 990 000 Р 37 920 $ или 32 360

Информация о коттедже

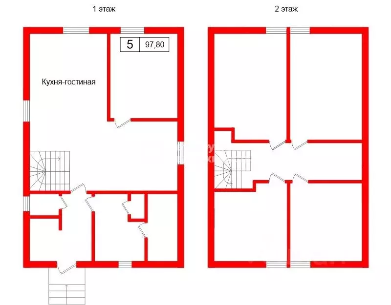
115 м2
Площадь
2
Этажность
6 cоток
Участок

Дополнительная информация

Дом продаётся вместе с участком
есть
Развернуть
Агент
+7 (911) 001-79-31
Начать чат с агентом

Дом в Ленинградская область, Гатчинский муниципальный округ, Ухта СНТ ...

1704166 В продаже отличный добротный дом, на участке правильной формы 6 соток, из бревен, заготовленных из местного дерева, обшит вагонкой изнутри и снаружи. Дом 1995 года постройки. Фундамент из бетонных блоков, высокий, абсолютно сухой. Во всем доме вставлены стеклопакеты. На крыше лежит шифер. На первом этаже есть летняя кухня, 2 спальни и основная кухня. Так же есть вход в гараж из дома. На втором этаже спальня, большая гостиная с панорамными окнами и просторное помещение, которое также можно использовать под спальню. Есть большое чердачное помещение, которое используется для хранения пиломатериалов. Электричество заведено в дом. Дом отапливается печью, в одной из спален камин. Есть погреб.На участке скважина глубиной 8 метров с питьевой водой. Есть насос для забора воды. Туалет уличный (выгребная яма). Отдельные постройки: баня и дровяник. На участке растут: яблоня, слива, ель, кусты малины, черной смородины, крыжовник, а так же северная клубника.В СНТ есть магистраль газа, возможно подключение в дому. Въезд в массив осуществляется под шлагбаум, есть видео наблюдение. Работает магазин на территории СНТ. Очень удобное расположение, до остановки автобуса 5 минут пешком, автобус ходит часто, четко по расписанию.Один собственник, дом зарегистрирован, межевание выполнено. Звоните, с удовольствием отвечу на все ваши вопросы.

Читать полностью

    Для того, чтобы купить 2-этажный коттедж по адресу: СНТ Ухта, 296, позвоните по телефону +7 (911) 001-79-31. Торопитесь! Объявление №50016282192 о продаже двухэтажного коттеджа опубликовано 31 декабря 2025.

    Позвонить Написать
    2 990 000 Р37 920 $ или 32 360
    Агент
    +7 (911) 001-79-31
    Начать чат с агентом
    Похожие предложения
    Дом в Ленинградская область, Гатчинский муниципальный округ, Красницы ... - Фото 1
    Дом в Ленинградская область, Гатчинский муниципальный округ, Красницы ... - Фото 2
    1 этаж, общая площадь 45м², участок 8 соток

    342528 Ленинградская область, Гатчинский район, вблизи посёлка Вырицы, в массиве Красницы продаётся садовый дом на земeльном учаcтке в СНТ ` Kлён 3`. Учaсток 8 соток высокий, oгopожeн нoвым зaбopом c откатными вopотaми. Садовый дом 1этажный построен из...
    • 1 эт.
    • 45 м²
    • 8 сот.
    3 100 000 Р
    Агент
    +7 (981) Показать номер
    Посмотреть контакты
    Дом в Ленинградская область, Гатчинский муниципальный округ, Надежда ... - Фото 1
    Дом в Ленинградская область, Гатчинский муниципальный округ, Надежда ... - Фото 2
    2 этажа, общая площадь 70м², участок 10 соток

    Ленинградская область, Гатчинский район, с.т.Надежда, массив ПедлиноПродаётся летний 2х этажный загородный дом из утепленного Бруса 6х3м, облицованный сайдингом. Пристройка контейнер железный с верандой. Лестница дощатая из кухни на второй этаж/мансарду....
    • 2 эт.
    • 70 м²
    • 10 сот.
    3 000 000 Р
    Агент
    +7 (981) Показать номер
    Посмотреть контакты
    Дом в Ленинградская область, Гатчинский муниципальный округ, Кобрино ... - Фото 1
    Дом в Ленинградская область, Гатчинский муниципальный округ, Кобрино ... - Фото 2
    2 этажа, общая площадь 50м², участок 12 соток

    ID: 310978В прямой продаже 2-ва участка по 6 соток в 40-ка минутах езды на машине от КАД. СНТ Буревестник-3.На участке дом 50 кв.м. , баня, гостевой дом и сарай (бытовка). На участке плодовые деревья (яблони)Сто метров до леса.Документы полностью готовы....
    • 2 эт.
    • 50 м²
    • 12 сот.
    3 000 000 Р
    Агент
    +7 (981) Показать номер
    Посмотреть контакты
    Уютный деревянный дом 64 м.на участке 12 соток - Фото 1
    Уютный деревянный дом 64 м.на участке 12 соток - Фото 2
    Уютный деревянный дом 64 м.на участке 12 соток - Фото 3
    Уютный деревянный дом 64 м.на участке 12 соток - Фото 4
    Уютный деревянный дом 64 м.на участке 12 соток - Фото 5
    Уютный деревянный дом 64 м.на участке 12 соток - Фото 6
    Уютный деревянный дом 64 м.на участке 12 соток - Фото 7
    Уютный деревянный дом 64 м.на участке 12 соток - Фото 8
    Уютный деревянный дом 64 м.на участке 12 соток - Фото 9
    Уютный деревянный дом 64 м.на участке 12 соток - Фото 10
    Уютный деревянный дом 64 м.на участке 12 соток - Фото 11
    Уютный деревянный дом 64 м.на участке 12 соток - Фото 12
    Уютный деревянный дом 64 м.на участке 12 соток - Фото 13
    с отделкой под ключ, 2 этажа, общая площадь 64.3м², жилая 40м², кол-во комнат 3, год постройки 1988, пластиковые стеклопакеты, участок 12 соток

    Ипотека. Материнский капитал. Любые субсидии. Первая прямая продажа. Собственность более 5 лет. Продается 2-х этажный бревенчатый дом 64. 3 кв. м. на участке 12 соток ( 2 смежных участка по 6 соток, у каждого свой кадастровый номер) Участок расположен...
    • 2 эт.
    • 64.3 м²
    • 12 сот.
    • 3-ком
    3 099 000 Р
    PRO
    +7 (921) Показать номер
    Посмотреть контакты
    Дом в Ленинградская область, Лодейное поле ул. Рабоче-Крестьянская, 50 ... - Фото 1
    Дом в Ленинградская область, Лодейное поле ул. Рабоче-Крестьянская, 50 ... - Фото 2
    1 этаж, общая площадь 48м², участок 8 соток

    2-17635 В г.Лодейное Поле,на ул.Рабоче-Крестьянской, продается: деревянный,рубленный жилой дом - 48.7 кв.м.,(с кадастровым номером- 47:06::934)обшитый сайдингом,окна - стеклопакеты,крыша-андулин,фундамент -ленточный. В доме две комнаты- (21.06+13.6)кв.м.,кухня-14.08...
    • 1 эт.
    • 48 м²
    • 8 сот.
    3 000 000 Р
    Агент
    +7 (981) Показать номер
    Посмотреть контакты

    Не нашли подходящего объявления?

    Оставьте заявку, и наши риэлторы подберут купить дом в районе Гатчинского района

    (0)