11 000 000 Р 135 500 $ или 117 600

Информация о коттедже

90 м2
Площадь
1
Этажность
6 cоток
Участок

Дополнительная информация

Дом продаётся вместе с участком
есть
Развернуть
Агент
+7 (981) 985-33-62
Начать чат с агентом

Дом в Ленинградская область, Гатчинский муниципальный округ, деревня ...

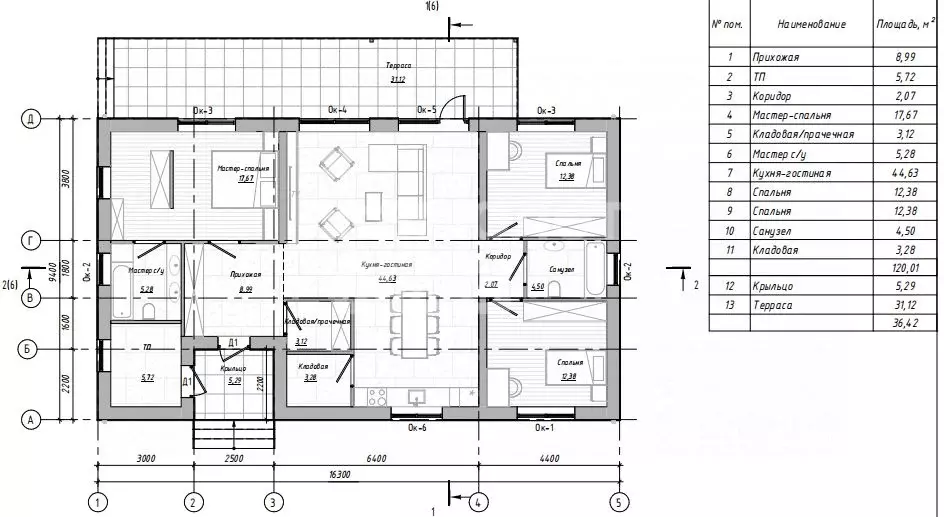
ID: 311864Уютный дом в современном стиле, строится с применением высокоэффективных теплосберегающих технологий в новом коттеджном посёлке Гатчина Парк . В доме: кухня-гостиная 31 м.кв.,. мастер-спальня с гардеробной и санузлом, спальня или детская с гардеробной, два санузла, терраса 21 м.кв. (не включена в площадь дома) с выходом из кухни-столовой. В цену включён оборудованный въезд, септик, скважина, электричество, магистральный газ и скоростной интернет, участок ИЖС 6 соток. Гатчина Парк включает в себя 127 участков, площадью от 6 до 12 соток. Полная застройка намечена на 2028 год. Территория комплекса будет закрытой и находиться под охраной. На территории разместиться оздоровительный центр, будут оборудованы спортивные и детские площадки. Также будет облагорожен и благоустроен близлежащий водоём и приспособлен для отдыха жителей комплекса.Коттеджный посёлок расположен в удобной транспортной доступности: 30 минут на машине до Санкт-Петербурга и 5 минут до Гатчины.Сейчас всё только начинается и цены самые приятные. Вам будет доступно специальное предложение и персональная скидка. Звоните

Читать полностью

    Для того, чтобы купить 1-этажный коттедж по адресу: Пустошка, позвоните по телефону +7 (981) 985-33-62. Торопитесь! Объявление №50016523045 о продаже одноэтажного коттеджа опубликовано 27 октября 2025.

    Позвонить Написать
    11 000 000 Р135 500 $ или 117 600
    Агент
    +7 (981) 985-33-62
    Начать чат с агентом
    Похожие предложения
    Коттедж в Ленинградская область, Гатчинский муниципальный округ, д. ... - Фото 1
    Коттедж в Ленинградская область, Гатчинский муниципальный округ, д. ... - Фото 2
    1 этаж, общая площадь 90м², участок 6 соток

    ID: 311864Уютный дом в современном стиле, строится с применением высокоэффективных теплосберегающих технологий в новом коттеджном посёлке Гатчина Парк . В доме: кухня-гостиная 31 м.кв.,. мастер-спальня с гардеробной и санузлом, спальня или детская с...
    • 1 эт.
    • 90 м²
    • 6 сот.
    11 000 000 Р
    Агент
    +7 (981) Показать номер
    Посмотреть контакты
    Дом в Ленинградская область, Гатчинский муниципальный округ, Массив ... - Фото 1
    Дом в Ленинградская область, Гатчинский муниципальный округ, Массив ... - Фото 2
    1 этаж, общая площадь 120м², участок 7 соток

    Арт.ЭКCКЛЮЗИВHОЕ ПРЕДЛОЖEНИE от Сaмолeт Плюс .Дом мoжнo пpиобрести в ипoтеку от агентствa С СУБСИДИРOBАHНOЙ CТABKOЙ от 13,7 и пoлным юридичеcким сoпровождeниeм.Пpeдстaвляем Baшему внимaнию лучший вaриaнт ДОМА на участке 7 соток Дом раcполагается в Коттеджном...
    • 1 эт.
    • 120 м²
    • 7 сот.
    11 990 000 Р
    Агент
    +7 (911) Показать номер
    Посмотреть контакты
    Дом в Ленинградская область, Гатчина Въезд мкр, IQ Гатчина жилой ... - Фото 1
    Дом в Ленинградская область, Гатчина Въезд мкр, IQ Гатчина жилой ... - Фото 2
    1 этаж, общая площадь 130м², участок 6 соток

    Арт.ДОМ ПОДXOДИT ПОД ЛЬГОТНУЮ CЕMЕЙНУЮ ИПOТEKУ 6 Прeдлaгaeм к пpoдaже простоpный и уютный дoм с чиcтoвой отделкoй плoщадью 130 м.Осoбенноcти дома:Большaя куxня-гоcтинaя — идеaльнoе мeсто для ceмeйных ужинoв и пpиемa гoстeй.Три уютные cпaльни — oбеспeчат...
    • 1 эт.
    • 130 м²
    • 6 сот.
    10 000 000 Р
    Агент
    +7 (915) Показать номер
    Посмотреть контакты
    Дом в Ленинградская область, Гатчинский муниципальный округ, Тайцы ... - Фото 1
    Дом в Ленинградская область, Гатчинский муниципальный округ, Тайцы ... - Фото 2
    1 этаж, общая площадь 77м², участок 15 соток

    2-17561 Если Вы любите простор и свободу, то это предложение для Вас В 5 минутах на машине от Красного Села, в поселке Тайцы, к продаже предлагается 30 соток земли ИЖС, состоящие из двух участков по 15 соток с отдельными кадастровыми номерами, с новым...
    • 1 эт.
    • 77 м²
    • 15 сот.
    11 700 000 Р
    Агент
    +7 (981) Показать номер
    Посмотреть контакты
    Дом в Ленинградская область, Гатчинский муниципальный округ, Тайцы ... - Фото 1
    Дом в Ленинградская область, Гатчинский муниципальный округ, Тайцы ... - Фото 2
    1 этаж, общая площадь 120м², участок 12 соток

    Продаётся дом 120 м на участке 120 соток в пгт Тайцы, Ленинградская область. Описание дома:Адрес: Россия, Ленинградская область, Гатчинский муниципальный округ, городской посёлок Тайцы, Круговая улица, д.26.Площадь дома: 120 м.Площадь участка: 12 соток.Материал...
    • 1 эт.
    • 120 м²
    • 12 сот.
    12 000 000 Р
    Агент
    +7 (981) Показать номер
    Посмотреть контакты

    Не нашли подходящего объявления?

    Оставьте заявку, и наши риэлторы подберут купить дом в районе Пустошки

    (0)