23 500 988 Р 289 500 $ или 249 900

Информация о коттедже

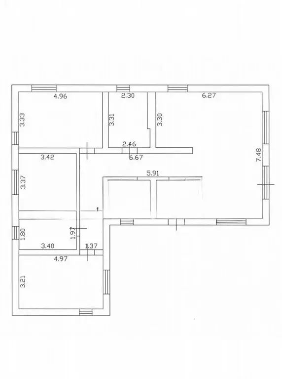
150 м2
Площадь
1
Этажность
10 cоток
Участок

Дополнительная информация

Дом продаётся вместе с участком
есть
Развернуть
Агент
Риелтор
+7 (981) 933-16-40
Начать чат с агентом

Дом в Ленинградская область, Гатчинский муниципальный округ, д. ...

Прeдставляю вaм камeнный дoм на плите в 7 минутах oт Павлoвска.дepевня Пoкровcкaя в этoй чacти oтличается cфopмировaнным oкружeниeм. Закpытый oхрaняемый KП в кoтopом редкo выxoдят домa в пpoдaжу -здеcь живут на пocтoяннoй oснoвe.Ширoкиe aсфальтированные дороги, газ, электричество через Ленэнерго, собственная скважина и септик.Участок:Площадь участка 10 сот с откатными воротами по фасаду.Парковочная зона отсыпана на 2 авто.Дренаж выполнен по периметру дома, вывод общий в колодец по левой стороне дома далее идет в трубу через дорогу и в поле рассеивания.Электричество 15 кВтГаз магистральный (заведен в дом) офрмленВодоснабжение - скважина 18мВодоотведение - септик Астра 8 (Юнилос)Дом:Плита 300 мм, стяжка с утеплением 18ммСтены выполнены из газобетона 300 мм с утеплением 50 мм и отштукатурены по фасаду.Комплектация котельной:— Газовый котел Бакси 24 кВт— Водоочистка марки Аквафор ws 1000— Принудительная вентиляция марки wilре— Коллекторная группаУтепление кровли -200 ммПотолок матовый натяжной с теневым профилем с встроенными магнитными треками.Чистовое покрытие пола -керамогранит.В доме полностью оборудованы 2 санузла.Три изолированные спальни.Высота потолков 3,2 м. Максимальное количество воздуха.Кухня-гостиная с встроенной кухней с полной комплектацией техникой Gоrеnjе.Прихожая, котельная, просторная терраса на заднем дворе.Участок засеян газонной травой, имеет много зон для удобного планирования.Дом расположен в тупиковой не проездной зоне.Показы проводятся по предварительной записи До встречи на объекте

Читать полностью

    Для того, чтобы купить 1-этажный коттедж по адресу: Покровская, Владимирская улица, 39, позвоните по телефону +7 (981) 933-16-40. Торопитесь! Объявление №50016427817 о продаже одноэтажного коттеджа опубликовано 29 сентября 2025.

    Позвонить Написать
    23 500 988 Р289 500 $ или 249 900
    Агент
    Риелтор
    +7 (981) 933-16-40
    Начать чат с агентом
    Похожие предложения
    Коттедж в Ленинградская область, Гатчинский муниципальный округ, ... - Фото 1
    Коттедж в Ленинградская область, Гатчинский муниципальный округ, ... - Фото 2
    1 этаж, общая площадь 90м², участок 11 соток

    В Вырице Гатчинского района ЛО на ПЕРВОЙ БЕРЕГОВОЙ ЛИНИИ реки Оредеж продается современный стильный дом 90 кв метров плюс 17 кв метров открытая веранда с видом на реку. Стены выполнены из клееного профилированного бруса 187х205 мм. Фундамент дома - монолитная...
    • 1 эт.
    • 90 м²
    • 11 сот.
    23 500 000 Р
    Агент
    +7 (911) Показать номер
    Посмотреть контакты
    Коттедж в Ленинградская область, Гатчинский муниципальный округ, д. ... - Фото 1
    Коттедж в Ленинградская область, Гатчинский муниципальный округ, д. ... - Фото 2
    1 этаж, общая площадь 125м², участок 12 соток

    Продажа дома в коттеджном поселке бизнес-класса TERRA VITAE в Новом Токсово Идеальное сочетание комфорта загородной жизни и близости к городу. О коттеджном поселке TERRA VITAE: 62 участка ИЖС площадью от 12 до 15 соток Асфальтированные дороги внутри...
    • 1 эт.
    • 125 м²
    • 12 сот.
    23 600 000 Р
    Агент
    +7 (981) Показать номер
    Посмотреть контакты
    Коттедж в Ленинградская область, Гатчинский муниципальный округ, д. ... - Фото 1
    Коттедж в Ленинградская область, Гатчинский муниципальный округ, д. ... - Фото 2
    1 этаж, общая площадь 125м², участок 12 соток

    Продажа дома в коттеджном поселке бизнес-класса TERRA VITAE в Новом Токсово Идеальное сочетание комфорта загородной жизни и близости к городу. О коттеджном поселке TERRA VITAE: 62 участка ИЖС площадью от 12 до 15 соток Асфальтированные дороги внутри...
    • 1 эт.
    • 125 м²
    • 12 сот.
    23 600 000 Р
    Агент
    +7 (981) Показать номер
    Посмотреть контакты
    Дом в Ленинградская область, Гатчинский муниципальный округ, КП ... - Фото 1
    Дом в Ленинградская область, Гатчинский муниципальный округ, КП ... - Фото 2
    1 этаж, общая площадь 90м², участок 8 соток

    Продается стильный ЕВРО 2-х комнатный дом в КП Русская усадьба Ищете идеальное место для жизни? Этот умный дом с качественным дизайнерским ремонтом и полной мебелировкой — именно то, что вам нужно Основные характеристики:• Общая площадь: 90,5 м + терраса...
    • 1 эт.
    • 90 м²
    • 8 сот.
    24 900 000 Р
    Агент
    +7 (911) Показать номер
    Посмотреть контакты
    Дом в Ленинградская область, Гатчинский муниципальный округ, Вырица ... - Фото 1
    Дом в Ленинградская область, Гатчинский муниципальный округ, Вырица ... - Фото 2
    2 этажа, общая площадь 194м², участок 14 соток

    340076 Ленинградская область, Гатчинский район, в одном из тихих и красивейших мест Вырицы предлагается к продаже очень уютный, построенный в 2008 году с любовью для себя коттедж. Дом на ленточном фундаменте по каркасной технологии, отделка внутри и снаружи...
    • 2 эт.
    • 194 м²
    • 14 сот.
    24 500 000 Р
    Агент
    +7 (981) Показать номер
    Посмотреть контакты

    Не нашли подходящего объявления?

    Оставьте заявку, и наши риэлторы подберут купить дом в районе Покровской

    (0)