Реализация объекта недвижимости приостановлена

Информация о квартире

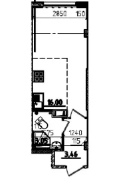
58.0 м2
Площадь
43.0 м2
Жилая
7.0 м2
Кухня
3
Комнаты
4
Этаж
5
Этажность

Дополнительная информация

Тип дома
панельный
Развернуть

3-к кв. Ленинградская область, Гатчинский муниципальный округ, д. ...

В экологически чистом районе в деревне Батово продается большая (58,9 м2) трехкомнатная квартира в панельном доме 1967 года постройки. Квартира теплая, удобной планировки. Две комнаты и кухня выходят на восточную строну, одна комната на западную. Комнаты 19+13+11 м2. Кухня 6 метров. Раздельный с/узел. Имеется балкон. Тихие спокойные соседи. Чистая парадная. Квартире нужен ремонт.Развитая инфраструктура: рядом магазины, детский сад, медпункт, почта, культурно-досуговый центр (различные кружки для детей и взрослых), тренажерный зал, библиотека.В 150 метрах от дома протекает река Оредеж. Есть свой пляж. Красивые высокие берега реки из разноцветного песчаника с родниками, прогулочные тропы парка привлекают сюда туристов и отдыхающих круглый год. В пешей доступности в п. Рождествено находится дом усадьба писателя Набокова. Рядом лес (грибы, ягоды).До ж/д станции Сиверская 7 км, на автобусе 20 минут (регулярно ходит автобус /маршрутноетакси). До г. Гатчина 24 км, ходит автобус.От метро Московская примерно час езды на авто. Можно добраться на электричке до Гатчины или Сиверской, а оттуда каждые полчаса ходят автобусы и маршрутки.Один взрослый собственник. Подойдут любые формы оплаты (ипотека, маткапитал, субсидии). Звоните, расскажу все более подробно. Возможен разумный торг Номер объекта: 1/538202/18051

Читать полностью

    Реализация объекта недвижимости приостановлена

    Не нашли подходящего объявления?

    Оставьте заявку, и наши риэлторы подберут квартиру в районе Батово

    (0)