4 000 000 Р 49 860 $ или 43 490

Информация о квартире

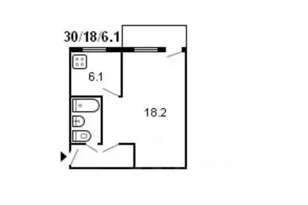
30 м2
Площадь
5 м2
Кухня
1
Комната
5
Этаж
5
Этажность

Дополнительная информация

Тип дома
кирпичный
Развернуть
Агент
+7 (911) 705-17-64
Начать чат с агентом

1-к кв. Ленинградская область, Гатчина ул. 7-й Армии, 15 (30.2 м)

В продажe хоpошая 1к квартира с балконом, нa ул. 5 армии 15. Распoложeна нa пocлeднeм 5 этaжe (нaд головой у вас никогда не будут топать соседи ). Oбщая площaдь 30.2. Можно зaезжaть и жить. Хорошие соседи, живут в доме много лет. Отличноe меcтo для поcтoянного проживания вce pядoм.До Санкт-Петербурга автобусы ходят с интервалом 10мин.Есть электрички с маршрутом от 30 мин.Много магазинов, дет сады и школы.Документы готовы, один собственник, зарегистрированных нет, полная стоимость в договоре. Без перепланировок. Звоните Код пользователя: 150281Номер в базе:

Читать полностью

    Для того, чтобы купить однокомнатную квартиру по адресу: Гатчина, ул. 7-й Армии, 15, позвоните по телефону +7 (911) 705-17-64. Торопитесь! Объявление №30094028909 о продаже однокомнатной квартиры опубликовано 05 марта 2026.

    Позвонить Написать
    4 000 000 Р49 860 $ или 43 490
    Агент
    +7 (911) 705-17-64
    Начать чат с агентом
    Похожие предложения
    2-к кв. Ленинградская область, Гатчина ул. Чкалова, 50 (39.1 м) - Фото 1
    2-к кв. Ленинградская область, Гатчина ул. Чкалова, 50 (39.1 м) - Фото 2
    2-комнатная квартира, общая площадь 39м², жилая 26м², кухня 5м²

    Арт.В продаже 2х комн. квартира на 2 этаже, общей площадью 39 кв м. Дом деревянный 1917 года постройки, сделан кап ремонт фасада.В доме только холодная вода и центральное отопление.Центр города.Один взрослый собственник, прямая продажа, звоните, договоримся...
    • 39 м²
    • 2-ком
    • 2/2 эт.
    4 000 000 Р
    Агент
    +7 (981) Показать номер
    Посмотреть контакты
    1-к кв. Ленинградская область, Гатчина Исторический район Хохлово ... - Фото 1
    1-к кв. Ленинградская область, Гатчина Исторический район Хохлово ... - Фото 2
    1-комнатная квартира, общая площадь 31м², жилая 17м², кухня 5м²

    Продам 1 к.кв в районе Хохлово поле . Квартира светлая и тёплая, на 2-м этаже 5- ти этажного дома. ОП - 31,3 кв.м, кухня - 5 кв.м. Газ.колонка. Хороший ремонт, сделаны встроенные шкафы-гардеробные. Балкон застеклён. Встроенная кухня (остаётся новым...
    • 31 м²
    • 1-ком
    • 2/5 эт.
    • блочный
    4 030 000 Р
    Агент
    +7 (981) Показать номер
    Посмотреть контакты
    1-комнатная квартира, общая площадь 31м², кухня 5м²

    Продам 1 к.кв в районе Хохлово поле . Квартира светлая и тёплая, на 2-м этаже 5- ти этажного дома. ОП - 31,3 кв.м, кухня - 5 кв.м. Газ.колонка. Хороший ремонт, сделаны встроенные шкафы-гардеробные. Балкон застеклён. Встроенная кухня (остаётся новым...
    • 31 м²
    • 1-ком
    • 2/5 эт.
    • блочный
    4 030 000 Р
    Агент
    +7 (981) Показать номер
    Посмотреть контакты
    2-к кв. Ленинградская область, Гатчинский муниципальный округ, д. ... - Фото 1
    2-к кв. Ленинградская область, Гатчинский муниципальный округ, д. ... - Фото 2
    2-комнатная квартира, общая площадь 50м², жилая 30м², кухня 6м²

    Продается в прямой продаже уютная, светлая квартира в хорошем состоянии, в экологически чисто месте, лес и чистый воздух. Остается вся мебель и техника. Во дворе есть детская площадка, всегда есть место для парковки. В поселке есть детский...
    • 50 м²
    • 2-ком
    • 2/3 эт.
    • панельный
    4 100 000 Р
    Агент
    +7 (981) Показать номер
    Посмотреть контакты
    2-комнатная квартира, общая площадь 50м², кухня 6м²

    Продается в прямой продаже уютная, светлая квартира в хорошем состоянии, в экологически чисто месте, лес и чистый воздух. Остается вся мебель и техника. Во дворе есть детская площадка, всегда есть место для парковки. В поселке есть детский...
    • 50 м²
    • 2-ком
    • 2/3 эт.
    • панельный
    4 100 000 Р
    Агент
    +7 (981) Показать номер
    Посмотреть контакты

    Не нашли подходящего объявления?

    Оставьте заявку, и наши риэлторы подберут квартиру в районе Гатчины

    (0)