Реализация объекта недвижимости приостановлена

Информация о квартире

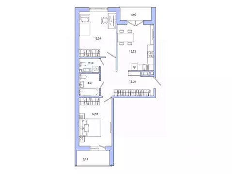
69.0 м2
Площадь
2
Комнаты
5
Этаж
9
Этажность

Дополнительная информация

Тип дома
монолит
Развернуть

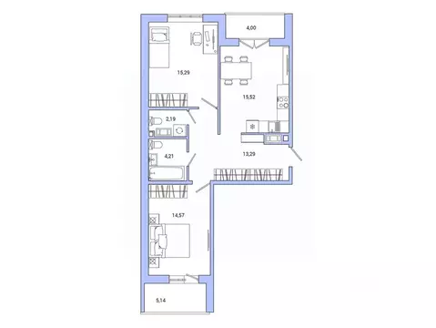
2-к кв. Ленинградская область, Гатчина ул. Чехова, 39 (69.8 м)

Продаётся 2-комнатная квартира в сданном доме (Чехова, 39 (Корпус 5.3)), срок сдачи: III-кв. 2025, общей площадью 69.64 кв.м., на 5 этаже. Жилой комплекс IQ Гатчинаасположен на въезде в Гатчину, неподалеку от г. Санкт-Петербурга. Расстояние до КАД - 24 км, возможен проезд на личной автомашине в центр Санкт-Петербурга по Пулковскому шоссе. Всего в 400 метрах от комплекса находится ж/д станция Татьянино , с которой ходят электрички до Балтийского вокзала, время в пути - 50 минут. Можно добраться от метро Московская на маршрутном такси К100А, К11, К18.

Читать полностью

    Реализация объекта недвижимости приостановлена

    Не нашли подходящего объявления?

    Оставьте заявку, и наши риэлторы подберут квартиру в новостройке в районе Гатчины

    (0)