Реализация объекта недвижимости приостановлена

Информация о квартире

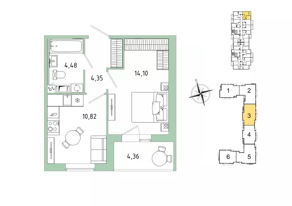
35.0 м2
Площадь
1
Комната
5
Этаж
9
Этажность

Дополнительная информация

Тип дома
монолит
Развернуть

1-к кв. Ленинградская область, Гатчина Въезд мкр, (35.93 м)

Продаётся 1-комнатная квартира в строящемся доме (Квартал 1, участок 6), срок сдачи: IV-кв. 2027, общей площадью 35.93 кв.м., на 5 этаже. Жилой комплекс IQ Гатчинаасположен на въезде в Гатчину, неподалеку от г. Санкт-Петербурга. Расстояние до КАД - 24 км, возможен проезд на личной автомашине в центр Санкт-Петербурга по Пулковскому шоссе. Всего в 400 метрах от комплекса находится ж/д станция Татьянино , с которой ходят электрички до Балтийского вокзала, время в пути - 50 минут. Можно добраться от метро Московская на маршрутном такси К100А, К11, К18.

Читать полностью

    Реализация объекта недвижимости приостановлена

    Не нашли подходящего объявления?

    Оставьте заявку, и наши риэлторы подберут квартиру в новостройке в районе Гатчины

    (0)