Реализация объекта недвижимости приостановлена

Информация о квартире

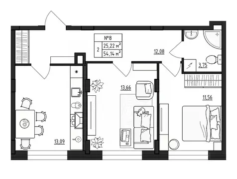
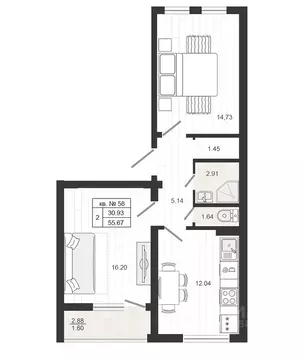
34.0 м2
Площадь
студия
Комнат
4
Этаж
8
Этажность
Развернуть

Студия Ленинградская область, Гатчина Красносельское ш., 4Ак1 (34.1 м)

Продаётся студия в строящемся доме (Корпус 3), срок сдачи: III-кв. 2025, общей площадью 34.1 кв.м., на 4 этаже. Ленинградская область, Гатчина, Красносельское шоссе ЖК Орловский бульвар в деталях:1. Технология строительства - кирпично-монолитные дома.2. Привлекательные современные фасадные решения, кирпичная кладка Омбре.Продуманы комфортные зоны отдыха и ожидания гостей, сделан просторный и светлый лифтовой холл с зеркалами и картинами. Входные двери в парадную планируются алюминиевые с остеклением. Отделка выполнена натуральными материалами в тёплой цветовой гамме и усилена подсветкой деталей и зон. Все материалы прочные и стойкие к ежедневному использованию.3. Закрытые дворы, без машин. Парковки вынесены за пределы ЖК.4.Собственная котельная5. Французские балконы с окнами в пол, распашные створки, окна со шпросами6.Многообразие и продуманность планировочных решений, квартиры от студий до четырехкомнатных.Просторные комнаты с возможностью разделения на зоны, встроенные гардеробные, евро-планировки и кухни-гостиные до 20 м2.Комфортная высота потолков от 2,8 до 3,2 м.7. Грузопассажирские скоростные лифты в каждом подъезде8. Современные детские площадки и зоны отдыха9. Прогулочные зоны, бульвар, ландшафтный дизайн по индивидуальному проекту.10. В пешей доступности парки и достопримечательности ГатчиныПуть до КАД занимает 2025 минут, а до ЗСД — 30 минут. Между станцией метро Московская и Гатчиной регулярно курсируют автобусы и маршрутные такси. Примерно в получасе ходьбы от ЖК Орловский бульвар есть железнодорожная станция Татьянино. Туда прибывают электрички с Балтийского вокзала Санкт-Петербурга.

Читать полностью

    Реализация объекта недвижимости приостановлена

    Не нашли подходящего объявления?

    Оставьте заявку, и наши риэлторы подберут квартиру в новостройке в районе Гатчины

    (0)