Россия, Ленинградская область, Бокситогорский район, Красный Бор, коттеджный посёлок Массив Никольское

Реализация объекта недвижимости приостановлена

Информация о коттедже

96.0 м2
Площадь
1
Этажность
6.0 cоток
Участок

Дополнительная информация

Дом продаётся вместе с участком
есть
Развернуть

Дом в Красный Бор, коттеджный посёлок Массив Никольское (96 м)

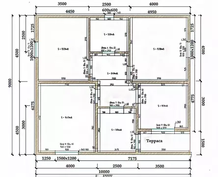
Под семейную ипотеку не подходит. Лучшее предложение для комфортной жизни Просмотры: Воскресенье с 12:00-15:00 Звоните и записывайтесь Документы: 1 собственник, без обременений Прямая продажа Дом зарегистрирован Полная цена в договоре Подходит под ипотеку Все документы готовы к сделке Возможно приобрести соседний участок (6 соток), который тоже выставлен на продажу и объединить участки у вас будет 12 соток. Инфраструктура: До ж/д станции Поповка–22 мин пешком. 35 мин на комфортной «Ласточке – и вы в центре СПб (Московский вокзал). Автобусная остановка – 150 м от дома (маршрутки ходят часто). Развозка детей в школу (Красный Бор) на школьном автобусе. Детские сады, школы, поликлиники, больницы, банки – в 6 км. Доставка продуктов: «Пятерочка , «Лента , «ВкусВилл . О доме: Полностью готов к заселению Каркас из карельского профиля (сборка на производстве). Утепление 200 мм (пол, стены, потолок). Ж/Б сваи (3–4 м). Фасад – имитация карельского бруса (окрашен на производстве). ОСБ-обшивка снаружи стен дома (для жёсткости каркаса). Есть фото всех этапов строительства Внутренняя отделка: Полностью завершена. Закладные под вытяжку, навесные шкафы, телевизор. Есть сауна. Коммуникации: Вода: колодец (5 колец), труба на глубине 2 м+ греющий кабель. Канализация: станция биоочистки «Итал Био . Электричество:15 кВт (3 фазы). Отопление: электрическое (тёплые полы + конвекторы). Участок: Ровный, квадратной формы. Забор из металлического штакетника с калиткой и распашными воротами. Заезд на 1 машину. Звоните и записывайтесь на просмотр Воскресенье с 12:00-15:00 Арт.

Читать полностью

    Реализация объекта недвижимости приостановлена

    Не нашли подходящего объявления?

    Оставьте заявку, и наши риэлторы подберут купить дом в районе Красного Бора

    (0)